办公空间丨色彩碎片化 勾勒多层次灰白肌理
办公空间丨色彩碎片化 勾勒多层次灰白肌理
作为商业写字楼的办公空间,开间可大可小,全在所需与经济承受的能力。在这个层面而言,本无需多作文章。但作为业主方,为了方便未来的使用方能够作较为直观的现场考察和使用考量,于是推出大小两个样板,由共生形态担负设计工作。
在设计层面考虑,如果仅仅是按照样板房完成设计,固然无可厚非。但是板房在设计的角度而言,实际是一种展示。既然作为展示,仅当做一般的室内设计,其过程对设计者而言,自然如嚼木屑,结果也无法打动参观者。
因此,共生形态的设计师在接受这个项目的设计任务,经过考虑之后,决定为两个板房先设计两种情境——一种是针对设计形式的情境,一个是针对行业特征的情境。既然在设计本身的层面没有硬性要求,设计师便在第一种情境中尝试着玩一种黑白灰关系的像素视觉,而将小一点的空间想象成一个小型的文创行业的办公地。
01

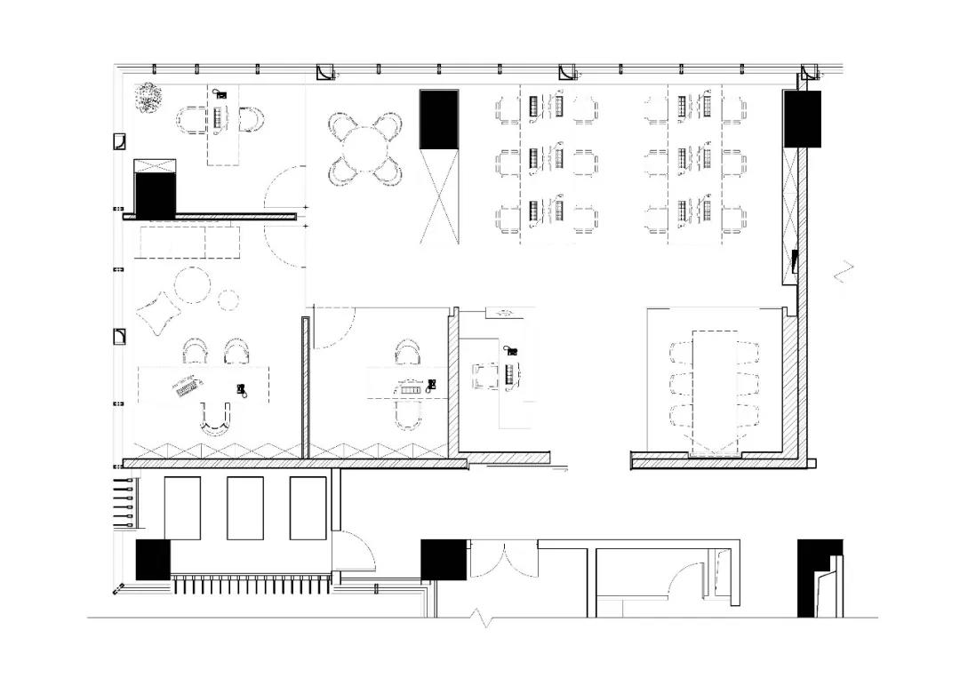
在平面上,共生形态的设计师没有盲目跟从西方类似设计中“开放式”办公的理念,而是仍然为管理者设立独立办公室。这是因为考虑到了中国人传统的心理状态特性的结果(业主方在项目设计的平面上也体现了这一点)——“开放式”毕竟不符合中国使用者的口味。事实上这一类方式是否在理论层面站得住脚也还得打一个问号。譬如所谓的“头脑风暴”,事实证明这个“风暴”最大的功能就是把参与者的头脑搅成一团浆糊。
单纯的黑白,在这十年来的设计中用得比较多。固然效果清明,视觉酷炫,但正如顿顿红烧肉,未久必腻。稍微换一个思路,或许能对胃口有所裨益。




所谓像素视觉,也就是将一个物体的颜色分解,像素化,在视觉上则表现为碎片化。共生形态的设计师在梳理出这一思路后,事实上将之定义为带有实验性质的工作——设计师运用这一原理,不急于考虑完成面,而是先将大的办公室板房空间通过不同材质、颜色、灯光作解构,将材质依照其各自肌理条件,观察在灯光下呈现出的颜色和状态,以此为设计依据,才开始考虑图上的设计作业。
在拆分然后归纳材质和色调变化之后,发现整个空间在色调的构成上呈现的是较大比例,不同亮度和存在状态的灰和白的主调。





白色的调子是整个重新建构的空间中保持稳定的部分,而由定制水泥板、木质造型的体块、灰色玻璃、地毯、家私形成的不同色调,不同质感的灰色,就成了整个空间中最活泼的元素,与白色相得益彰。让整个空间呈现出静谧但不沉闷的氛围。
这样做出来的设计,最后的效果很让人想象到影像后期处理中不同体块的快速精准的拆分和聚合的效果,带有视觉幻像的意味。而这一切则完全是分析——表现的结果。







02
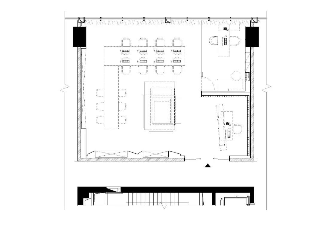
在小板房部分,共生形态的设计师将这个空间设想、定义为一个小型的,资本不厚,务求节约但又好用,人数控制在二十人以内的常规的小型文创类工作室。
利用“某某熊”造型和变化的橙色为设计中调节空间氛围的元素,以大面积的白通过形态的不同在灯光下形成多元层次,辅以细微变化的深灰,建立空间秩序。




“非陌非阡非道路,不衫不履不头巾”,本指读书读通了的状态。设计则是一个在一定框架下建立秩序的游戏。理解了这一点,便不至狃于套路,尝试下“运用之妙,存乎一心”的滋味。














——END——
本文转自PChouse设计师俱乐部
想了解更多装修资讯,请关注同欣瑜装饰公众号
- 上一篇:现代轻奢,美极了! [2019-03-21]
- 下一篇:北欧风,挡不住的流行趋势! [2019-03-16]



