『商业空间』幸运先生
更新:2019-02-17 17:00:43 点击:
项目名称:幸运先生
项目地址:厦门市源昌凯宾斯基二楼名品区
该项目位于厦门市思明区湖滨中路98号,源昌凯宾斯基二楼名品区,一家专注于男士量身定制的定制服装店。
项目地址:厦门市源昌凯宾斯基二楼名品区
该项目位于厦门市思明区湖滨中路98号,源昌凯宾斯基二楼名品区,一家专注于男士量身定制的定制服装店。
详情
项目名称:幸运先生
项目地址:厦门市源昌凯宾斯基二楼名品区
空间有限,设计无限
该项目位于厦门市思明区湖滨中路98号,源昌凯宾斯基二楼名品区,一家专注于男士量身定制的定制服装店。
“幸运先生”定制服装立志于为客户提供更贴心更舒适的服务,让客户可以在不同的场合都能释放个人魅力。
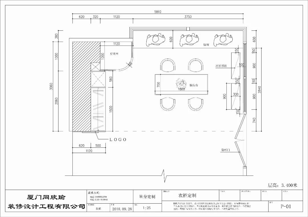
空间设计师根据现场尺寸以服装量身定制的时尚元素为前提,对空间进行了设计布局。
橱窗处关于展示模特也进行了精心的挑选,有别于一般服装店常用的模特,选用了此款欧式方座底座复古色的无头半身假人模特。
彰显档次的同时有使整体空间更具通透性。窗台背面白色窗帘背景更凸显模特展示的服装,在射灯光线作用下,而不失低调奢华。
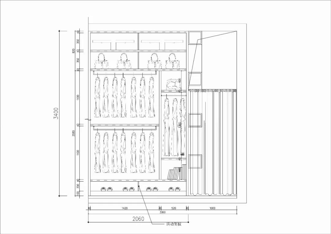
红砖墙一侧设计师根据甲方要求,从而进行了柜子的定制设计,侧面为品牌LOGO,每格层板又置放灯带。更衣间靠墙位于衣柜及橱窗夹角区,使用了帘子的形式,拉上帘子是一个独立的空间,拉开帘子又融于整体,方便客人试穿服装后能即刻看清上身效果。



想了解更多装修资讯,请关注欣瑜装饰公众号
相关













