详情
该项目位于厦门云创智谷,整体面积在800平方。整体项目分为两部分装修:客座区(含办公区、包厢区、员工更衣区)、中央厨房区。感谢业主的信任,此次我们主要负责整体客座区的装修。以下为整体空间效果图。

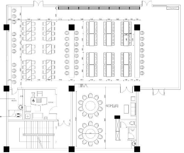
整体平面图
食尚空间整体施工图
施工过程中的,点点滴滴。 随着班组的进度、整体空间在慢慢成型。
收尾阶段,清理卫生。
完工照~
想了解更多装修资讯,请关注同欣瑜装饰公众号
相关













