详情
项目:翔安首开领翔上郡陈总雅宅
空间有限,设计无限
同欣瑜装饰与您共同实现您的梦想空间。
视角一
视角二
视角三
视角四
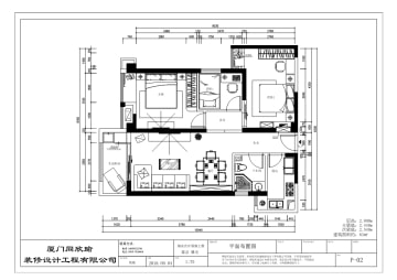
平面图布置图
想了解更多装修资讯,请关注欣瑜装饰公众号
相关
项目:翔安首开领翔上郡陈总雅宅
视角一
视角二
视角三
视角四
平面图布置图
想了解更多装修资讯,请关注欣瑜装饰公众号
| ||||