网站首页
|
网站导航
|
留言反馈
联系电话
0592-7028069
网站首页
关于我们
企业文化
公司环境
公司团队
新闻动态
公司新闻
案例展示
工装案例
家装案例
工装完工工程
家装完工工程
在建工程
在建工程(家装)
在建工程(工装)
鹭燕大药房
装修知识
公司人才
人才培养
福利待遇
人才招聘
客服中心
售后服务
联系我们
在线留言
案例展示
工装案例
家装案例
家装完工案例
工装完工案例
点击排行
『商业空间』南京同仁堂厦门馆
『商业空间』鹭燕大药房分店
『办公空间』智能互联科技办公
『居家空间』海西舜弘公馆
『商业空间』幸运先生
『居家空间』禹州香溪里4#地
『居住空间』同安五显自建房
『居家空间』西塘陈府
『商业空间』江西德兴科技馆效
『居家空间』宝嘉誉园雅宅
最新资讯
三登卫生间改造
燕来福8号楼11
福州世茂东望店
福州鹭燕苍霞新城店
燕来福8号楼10
燕来福8号楼9
燕来福8号楼8
鹭燕大药房鱼福三里居
鹭燕大药房埭头店
燕来福铁皮房消防改造
搜索
首页
>
案例展示
>
工装完工案例
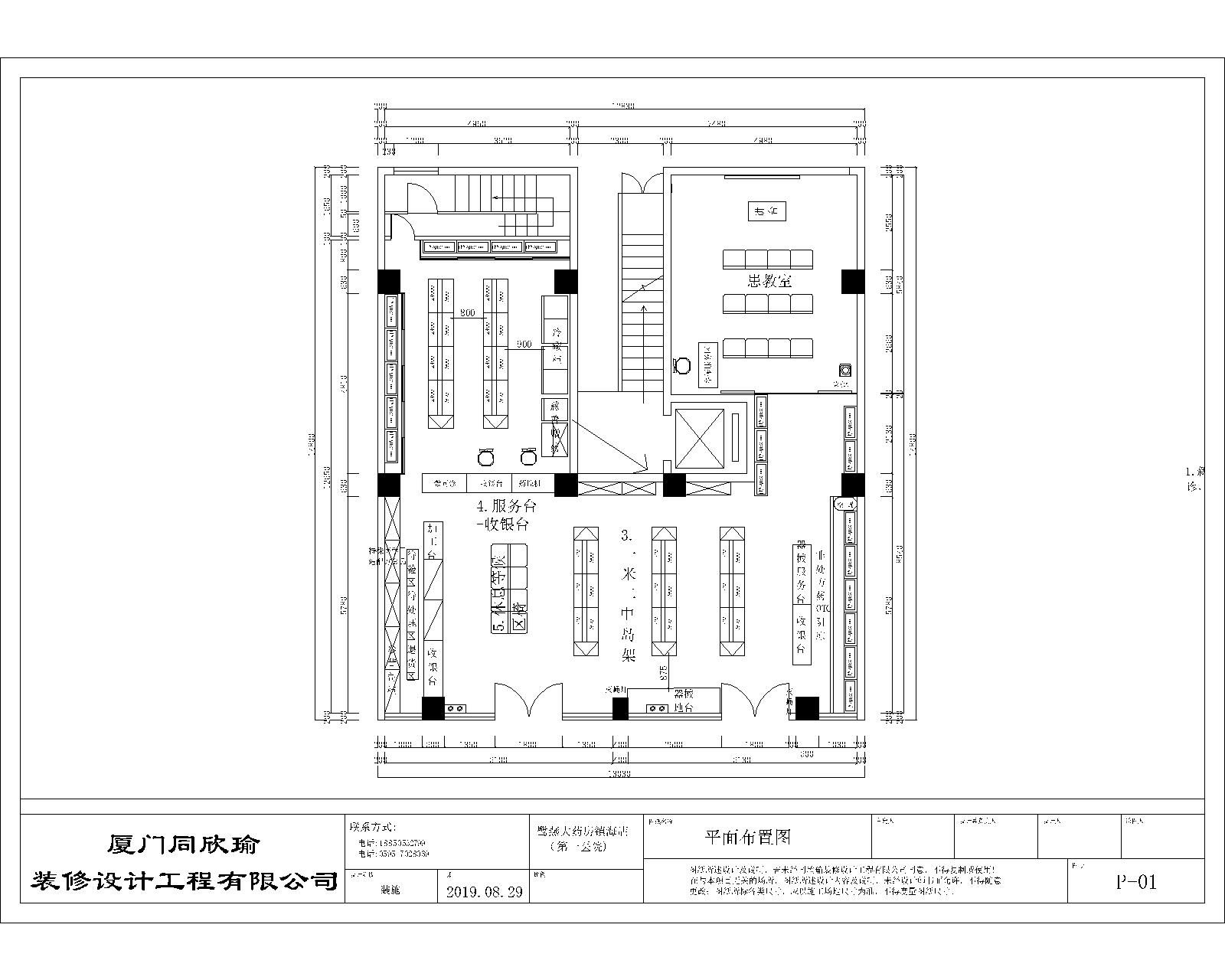
鹭燕大药房分店DYYYD
更新:2019-12-24 15:10:07 点击:
详情
平面图布置图
想了解更多装修资讯,请关注同欣瑜装饰公众号
相关
福州鹭燕苍霞新城店
阳光大药房(新华街分店)
三登四楼楼道
健康100大药房
鹭燕福州协和医院店
鹭燕福州900店
鹭燕孚莲二里店
鹭燕福州奥体店
齐强胜厂房四楼
欣瑜装饰
欣瑜装饰