网站首页
|
网站导航
|
留言反馈
联系电话
0592-7028069
网站首页
关于我们
企业文化
公司环境
公司团队
新闻动态
公司新闻
案例展示
工装案例
家装案例
工装完工工程
家装完工工程
在建工程
在建工程(家装)
在建工程(工装)
鹭燕大药房
装修知识
公司人才
人才培养
福利待遇
人才招聘
客服中心
售后服务
联系我们
在线留言
案例展示
工装案例
家装案例
家装完工案例
工装完工案例
点击排行
『商业空间』南京同仁堂厦门馆
『商业空间』鹭燕大药房分店
『办公空间』智能互联科技办公
『居家空间』海西舜弘公馆
『商业空间』幸运先生
『居家空间』禹州香溪里4#地
『居住空间』同安五显自建房
『居家空间』西塘陈府
『商业空间』江西德兴科技馆效
『居家空间』宝嘉誉园雅宅
最新资讯
三登卫生间改造
燕来福8号楼11
福州世茂东望店
福州鹭燕苍霞新城店
燕来福8号楼10
燕来福8号楼9
燕来福8号楼8
鹭燕大药房鱼福三里居
鹭燕大药房埭头店
燕来福铁皮房消防改造
搜索
首页
>
案例展示
>
家装完工案例
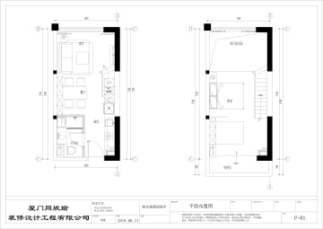
阳光翡丽海岸单身公寓
更新:2019-08-14 09:16:41 点击:
详情
2019年8月14日
想了解更多装修资讯,请关注欣瑜装饰公众号
相关
三登塑胶
官浔
金帝中州滨海城
潘涂自建房
海投自贸
金帝中洲滨海城#2
假日大厦
金帝中洲滨海城#10
竹山自建房
欣瑜装饰
欣瑜装饰